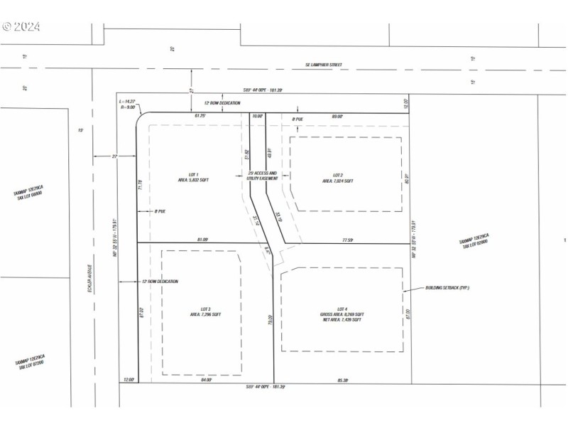
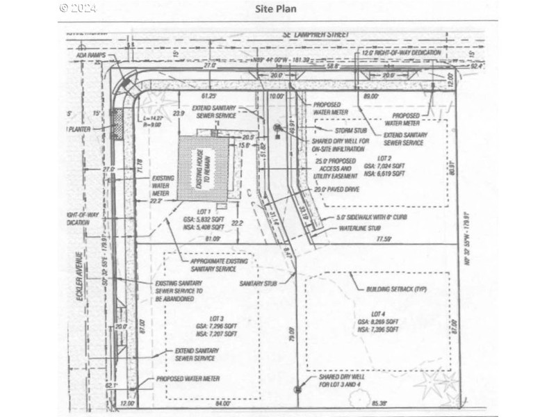
Rare opportunity to own a huge parcel of dividable land in Milwaukie! Site includes existing home which is currently income producing as a rental. Surveys are complete and land is ready for your project. City allows for each of the land parcels to each have a single family or an attached home of 1-4 units, so there could be 16 attached homes! Buyer to complete it's own due diligence. Existing home had new sewer 2018 and from 2019 had new roof, new gutters, new skylights, interior renovation, updates to wiring, new appliances and new interior and exterior paint.
SE Lamphier to SE Eckler. Property is on the corner of SE Lamphier & SE Eckler
Dwelling Type: Land
Subdivision: N/A
Year Built: N/A, County: US
SE Lamphier to SE Eckler. Property is on the corner of SE Lamphier & SE Eckler
Listing is courtesy of Bespoke Realty